Residence
Studio III – B. Arch (M. S. University, India)
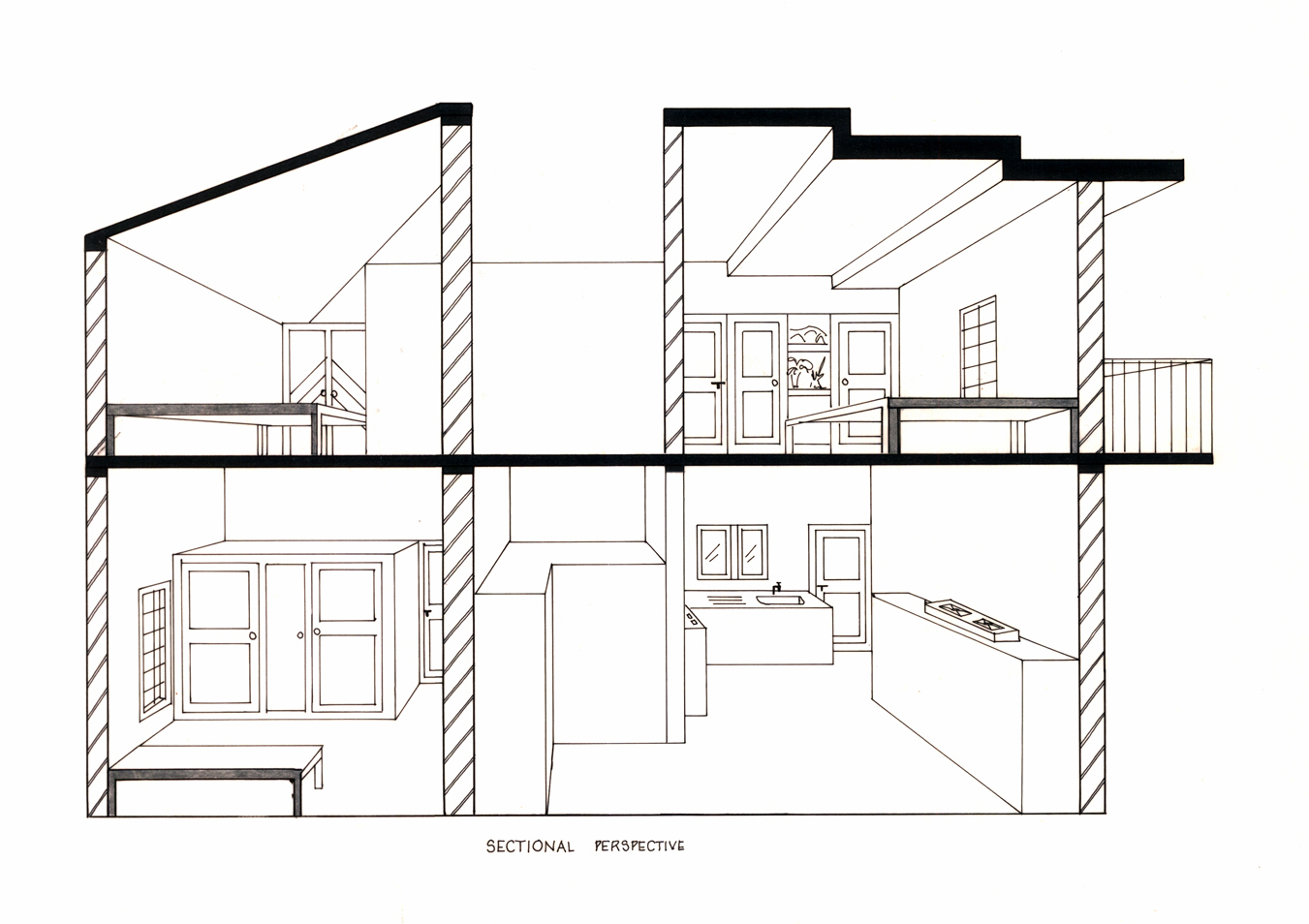
As second year Architecture students, we were asked to design our own residence. It was quite a challenge to imagine our dream of a house and put them together. We did come up with something at the end… But for sure, it is a never ending journey to explore one’s own space! My concept revolved around water features with connecting pool between inside and outside space. Landscaping with visual connections made extroverted spaces. The design responded to the tropical climate with open balconies, flat terraces, rooftop garden, and an outdoor pool area. This is one of the initial student projects where the fun was to make all hand rendered drawings!






